空间以白色调为主,通过用多种轻奢感十足的元素来对空间进行装饰,家具摆放简洁质朴,空间整体呈现出的氛围感强烈,这个狭小的空间在设计师的打造下成为了一个宁静的私人小天地。
{
}
设计师为这个空间做出了两个不同的方案,多样的方案更加能满足客户的需求,为客户带来高品质的设计,同时两个方案也起到了对比和衬托的作用。
{


}
客厅空间质朴简洁,黑胡桃的柜体搭配白色的墙面,空间没有给人太繁复的感觉,更多的体现出了一种干练简洁的氛围,白色柔软的沙发看上去很舒适,几何块状的电视柜看上去也大气十足。
{



}
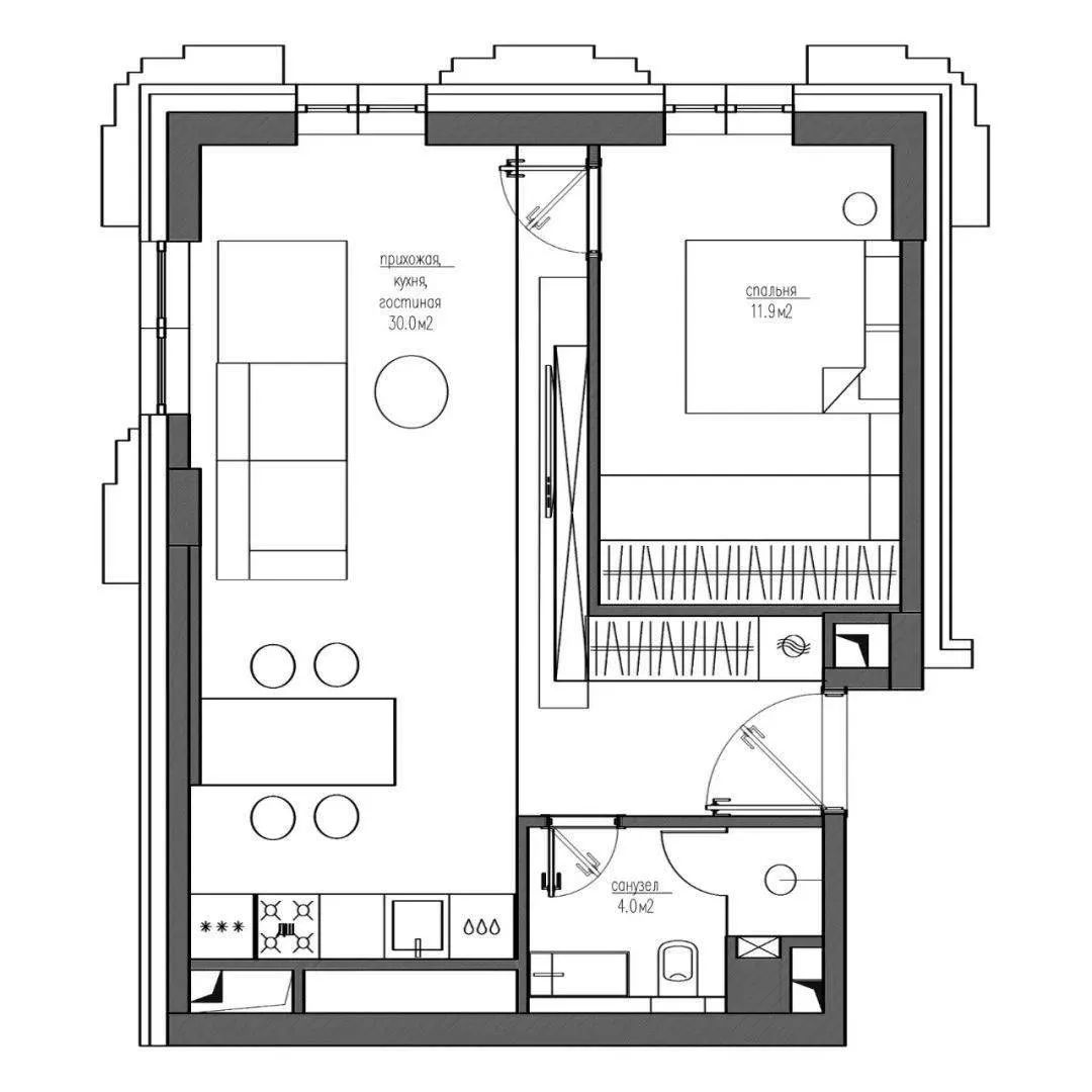
考虑到这个公寓的面积有限,设计师用到了紧邻厨房的两座吧台餐桌,在有限的范围内做出了舒适的厨房空间和就餐空间,餐桌也起到了一个隔断的作用,将厨房空间和客厅分割,金属和实木结合的餐桌椅有很强的肌理感。
{




}
卧室以黑色和白色为主,黑胡桃色的柜体和地板搭配白色的墙面和双人床,营造出了明显的对比,整个空间色彩分明,黑白色的碰撞营造出了别样的美感。
{



}